In Vendita

LOFT CON GIARDINO

Merate - Via S.marcellino, 18
Codice: Merate243
243.000 €
86 m²
Superficie
1
Locali
1
Camere
1
Bagni
1
Box auto
Descrizione
MERATE: Nella frazione verdeggiante di Cassina Fra' Martino a due passi dal Lago di Sartirana ed altri bellissimi percorsi naturali, proponiamo in vendita una soluzione indipendente a schiera e di testa.
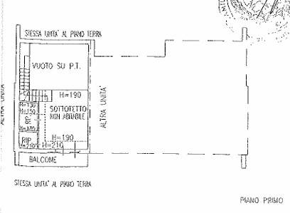
Il loft è sviluppato su due livelli e così composto: una luminosa zona living con doppio accesso sul giardino, cucina a vista ,disimpegno e bagno finestrato.
Accedendo dall'ingresso è stata realizzata una moderna struttura di disimpegno con armadiatura su misura che conduce tramite scala a vista al piano superiore dove vi è un ampio soppalco luminoso, adibito a camera, che si affaccia sul soggiorno e conduce al balcone. Il livello è completato da un'armadiatura con cabina ed un piccolo servizio. Inclusa nella proprietà' un'ampia autorimessa singola . Il presente annuncio ha valore indicativo e non costituisce elemento contrattuale
Caratteristiche
Codice:
Merate243
Città:
Merate
Categoria:
Casa singola
Spese condominiali:
100 € / anno
Locali:
1
Camere:
1
Bagni:
1
Mq:
86
Box auto:
1
Mq Box:
19
Mq Giardino:
100
Balconi:
1
Mq Balcone:
9
Piano:
1
Anno:
2007
Classe energetica:
E
Stato Immobile:
Ottimo
Grado:
Signorile
Posizione:
Periferia
Panorama:
Vista Giardino
Orientamento:
Est Nord Ovest
Lati Liberi:
3
Giardino:
Privato
Arredi:
Arredato
Tipo Soggiorno:
Soggiorno
Tipo Cucina:
A Vista
Riscaldamento:
Autonomo
Tipo Riscaldam.:
Caldaia a Condensazione
Tipo Impianto:
Radiatori
Fonte Energetica:
Metano
Acqua Calda:
Caldaia
Raffrescamento:
Non Necessario
Infissi:
Legno Doppio Vetro
Serramenti:
Ottimo
Persiana:
Persiana Metallo
Pavim. Giorno:
Parquet
Pavim. Notte:
Parquet
Isolamento termico:
Cappotto esterno
Accessori
Armadio a Muro
Cancello Elettrico
Doppi Vetri
Inferriate
Ingresso indipendente
Passaggio Automobilistico
Passaggio Pedonale
Porta Blindata
Ripostiglio
Tende da sole
Zanzariere
Planimetria
1 / 3
2 / 3
3 / 3
Mappa
Merate - Via S.marcellino, 18
Attiva i cookies e ricarica la pagina per visualizzare il contenuto
Video
Cookie preference