In Vendita

Locale commerciale e abitazione residenziale

Imbersago
Codice: IMBERSAGO750
750.000 €
520 m²
Superficie
8
Locali
6
Camere
3
Bagni
1
Box auto
Descrizione
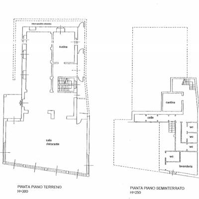
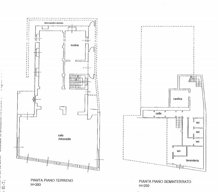
IMBERSAGO: Proponiamo ottima soluzione con locale commerciale al piano terra adibito a ristorante, situato in una posizione strategica nel cuore della città. La soluzione si sviluppa su quattro livelli, offrendo spazi versatili e funzionali. Al piano primo troviamo uno spazio residenziale composto da sei camere da letto e tre bagni, ideale per creare un'accogliente B&B. Al piano secondo, una suggestiva mansarda allo stato di rustico avanzato, con una splendida vista panoramica, che può divenire un ulteriore unità abitativa, composta da un trilocale con doppi servizi. Al piano interrato sono presenti la cantina e l'autorimessa.
Una soluzione perfetta per chi desidera unire lavoro e vita privata in un unico contesto.
Contattaci per maggiori informazioni e per organizzare una visita.
Caratteristiche
Codice:
IMBERSAGO750
Città:
Imbersago
Categoria:
Negozio
Locali:
8
Camere:
6
Bagni:
3
Mq:
520
Mq calpestabili:
498
Box auto:
1
Balconi:
6
Piano:
Terra
Anno:
1990
Classe energetica:
In fase di valutazione
Stato Immobile:
Buono
Grado:
Medio
Posizione:
Campagna
Panorama:
Vista Aperta
Orientamento:
Nord Ovest Sud Est
Lati Liberi:
4
Giardino:
Privato
Riscaldamento:
Centralizzato
Tipo Riscaldam.:
Caldaia
Tipo Impianto:
Termosifoni
Fonte Energetica:
Metano
Pavim. Giorno:
Ceramica
Pavimento:
Cotto
Accessori
Aria Condizionata
Bagno Handicap
Camino
Canna fumaria
Doppi Vetri
Ingresso indipendente
Planimetria
1 / 1
Virtual tour
Cookie preference