In Vendita

TRILOCALE CON GIARDINO

Imbersago - via Ruschetta, 2
Codice: Imbersago 325
325.000 €
138 m²
Superficie
3
Locali
2
Camere
2
Bagni
1
Box auto
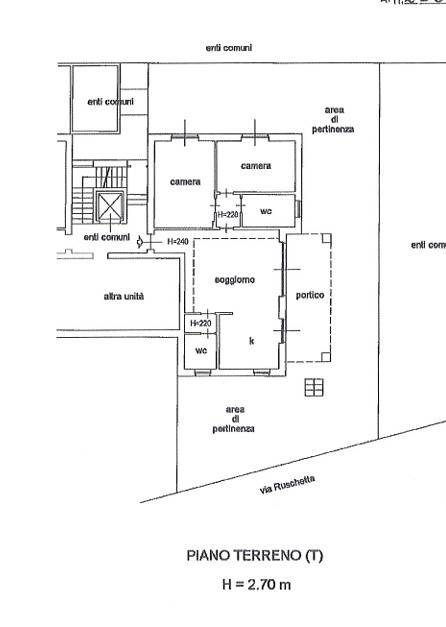
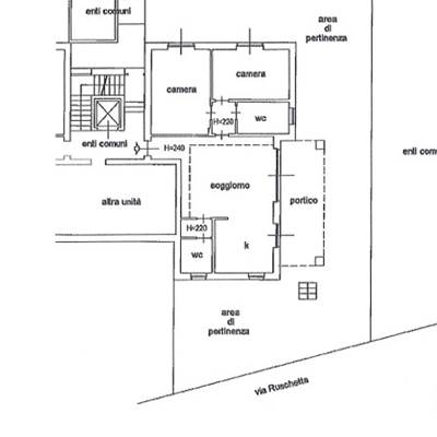
Descrizione
IMBERSAGO: In un contesto residenziale di recente costruzione, proponiamo in vendita splendido trilocale con ampio giardino privato. L'abitazione è composta da :
luminoso e moderno soggiorno con cucina a vista, due ampie camere da letto , doppi servizi, comodo portico coperto, ottimo per momenti di relax all'aperto e giardino privato di generose dimensioni.
Dotazioni e finiture:
-Riscaldamento a pavimento
-VMC (Ventilazione Meccanica Controllata)
-Aria Condizionata
-Ottimo livello di efficienza energetica
-Piscina condominiale

Completa la proprietà una cantina ed un'autorimessa doppia quotata al prezzo di € 25.000.
Soluzione moderna e funzionale, ideale per famiglie e per chi desidera, un immobile di qualità con spazi esterni davvero fruibili
Il presente annuncio ha valore indicativo e non costituisce elemento contrattuale.
Caratteristiche
Codice:
Imbersago 325
Città:
Imbersago
Categoria:
Appartamento
Locali:
3
Camere:
2
Bagni:
2
Mq:
138
Mq calpestabili:
103
Box auto:
1
Mq Box:
30
Mq Giardino:
150
Anno:
2011
Classe energetica:
B
Stato Immobile:
Ottimo
Grado:
Signorile
Orientamento:
Sud Est
Lati Liberi:
3
Tipo Soggiorno:
Soggiorno
Tipo Cucina:
A Vista
Riscaldamento:
Centralizzato
Tipo Riscaldam.:
Pompa di Calore
Tipo Impianto:
Pavimento
Fonte Energetica:
Fotovoltaico
Acqua Calda:
Centralizzata a Pannelli
Raffrescamento:
Split
Infissi:
PVC Doppio Vetro
Serramenti:
Ottimo
Persiana:
Persiana Legno
Pavim. Giorno:
Ceramica
Pavim. Notte:
Parquet
Pavim. Cucina:
Ceramica
Pavim. Bagno:
Ceramica
Isolamento termico:
Cappotto esterno
VMC:
Si
Accessori
Antifurto
Aria Condizionata
Ascensore
Cancello Elettrico
Doppi Vetri
ImpiantoFotovoltaico
Impianto Satellitare
Lavanderia
Piscina
Tapparelle Elettriche
Planimetria
1 / 3
2 / 3
3 / 3
Mappa
Imbersago - via Ruschetta, 2
Attiva i cookies e ricarica la pagina per visualizzare il contenuto
Virtual tour
Video
Cookie preference