In Affitto

UFFICIO IN AFFITTO CON AMPIA VISIBILITA' .

Calco - via nazionale, 11
Codice: CALCO1000
1.000 €
106 m²
Superficie
4
Locali
4
Camere
2
Bagni
Descrizione
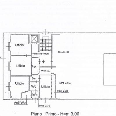
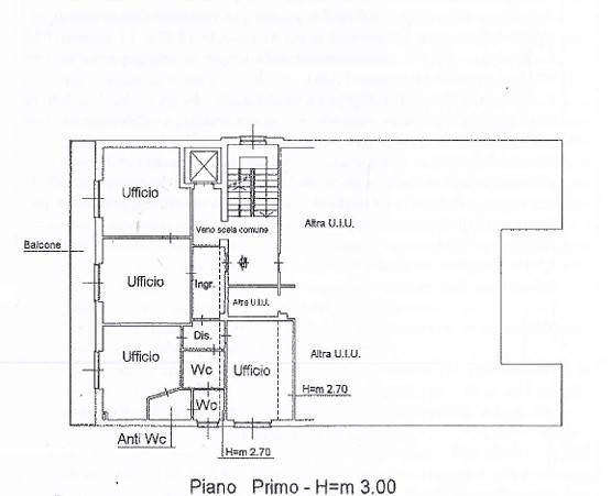
CALCO: Proponiamo in affitto un luminoso ufficio situato nel centro di Calco al primo piano di un curato condominio. La soluzione è composta da quattro locali ad uso ufficio ideali per studi professionali o attività direzionali, completato da un bagno accessibile per disabili e un secondo servizio, con un ampio balcone ben visibile che rappresenta un importante valore aggiunto per l’installazione di insegne pubblicitarie e per garantire massima visibilità alla propria attività, il tutto in una posizione strategica comoda con servizi, parcheggi e facilmente raggiungibile da clienti e collaboratori, soluzione perfetta per chi cerca funzionalità, rappresentanza e visibilità in un contesto centrale.
Il presente annuncio ha valore indicativo e non costituisce elemento contrattuale
Caratteristiche
Codice:
CALCO1000
Città:
Calco
Categoria:
Ufficio
Locali:
4
Camere:
4
Bagni:
2
Mq:
106
Posti auto:
6
Balconi:
1
Mq Balcone:
12
Anno:
1970
Classe energetica:
D
Life Style:
Friendly
Stato Immobile:
Buono
Grado:
Medio
Posizione:
Centro
Panorama:
Vista Aperta
Orientamento:
Sud Est
Lati Liberi:
3
Riscaldamento:
Autonomo
Tipo Riscaldam.:
Caldaia
Tipo Impianto:
Termosifoni
Fonte Energetica:
Metano
Accessori
Ascensore
Cancello Elettrico
Passaggio Automobilistico
Passaggio Pedonale
Porta Blindata
Planimetria
1 / 1
Mappa
Calco - via nazionale, 11
Attiva i cookies e ricarica la pagina per visualizzare il contenuto
Video
Cookie preference